Wrocław, Krzyki, Ołtaszyn, Ułańska

Mieszkanie na sprzedaż

3 pokoje 2 piętro 115,00 m2 9 478,26 zł/m2

1 090 000 zł

oferta na wyłączność
Grzegorz

Pośrednik w obrocie nieruchomościami

Opis nieruchomości

Oferta tylko w POTER Nieruchomości

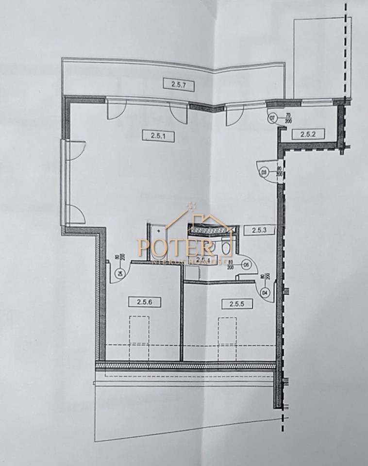
Na sprzedaż bardzo ładne, komfortowe 3 pokojowe mieszkanie z tarasem o powierzchni użytkowej  73,45 m2 (pow. całkowita ok. 90 m2) + poddasze ok. 30 m2 na 2 piętrze 2 piętrowego budynku z 2012 r. na Krzykach na prestiżowym osiedlu Ołtaszyn przy ul. Ułańskiej, spełni oczekiwania rodzin, par i osób ceniących komfort, przestrzeń i bliskość natury.

- 200 m  Tor Wyścigów Konnych
 

Mieszkanie składa się z:

- przestronnego salonu (42,37 m2)

- aneksu kuchennego (4,33 m2)

- pokoju (8,28 m2)

- pokoju (8,14 m2)

- łazienki z WC (6,51 m2)

- przedpokoju (3,82 m2)

- tarasu (13,28 m2)

- poddasze użytkowe o powierzchni ok. 28 m (niewliczone w metraż mieszkania)

⭐️ Do mieszkania przynależy komórka lokatorska (1,65 m2) dodatkowo płatna 20 000 zł oraz miejsce postojowe w garażu podziemnym dodatkowo płatne 40 000 zł.

⭐️ Czynsz: ok. 720 zł. Lokalna kotłownia gazowa. 

⭐️ Atuty nieruchomości:

✔️ Mieszkanie jasne, trójstronne z ekspozycją słoneczną na północno - zachodnią i północną stronę
✔️ Lokal cichy, z widokiem na zielony skwer i plac zabaw
✔️ Klatka schodowa czysta i zadbana z videodomofonem i monitoringiem
✔️ Kameralne i bezpieczne osiedle, ogrodzone, dużą ilością zieleni
✔️ Klimatyzacja
✔️ Okna PCV z roletami elektrycznymi. Drzwi zewnętrzne antywłamaniowe
✔️ Światłowód
✔️ Kominek BIO
✔️ Lokal w pełni umeblowany i wyposażony w sprzęt AGD, gotowy do wprowadzenia
✔️ Wykończenie premium (drewno egzotyczne, marmur, granit, wysokiej klasy armatura oraz sprzęt AGD )

⭐️ Lokalizacja i otoczenie:

Dla osób, które chcą mieszkać w bliskim otoczeniu zieleni nie tracąc jednocześnie możliwości bardzo szybkiego dotarcia do ścisłego centrum miasta oraz dostępu do pełnej infrastruktury handlowo-usługowej.

W pobliżu:

• liczne sklepy, restauracje, kawiarnie i punkty usługowe,
• tereny zielone i parki, w tym Park Słoneczny, idealne na spacery i rekreację,
• bliskość komunikacji miejskiej, przystanków tramwajowych i autobusowych,
• dostęp do infrastruktury edukacyjnej i rekreacyjne

W bliskiej odległości znajduje się Tor Wyścigów Konnych, Zamek Topacz, Basen Aquario, boisko, siłownia na powietrzu, Park Kleciński, Park Południowy.

Na osiedlu Partynice jest również przystanek linii kolejowej, umożliwiający sprawny dojazd do centrum Wrocławia, Sobótki (punkt wypadowy na pobliskie szlaki turystyczne piesze i rowerowe pobliskiego Masywu Ślęży) i Świdnicy.
 
Dzielnica dobrze skomunikowana z pozostałą - autobusy 112, 113, 127, 612, 913, nocny.

CENIONA LOKALIZACJA - PRESTIŻOWA OKOLICA - POLECAM !!!

Cena: 1 090 000 zł  do negocjacji!


Ewelina Otawa
Pośrednik w obrocie nieruchomościami lic. zaw. nr 22791
tel. 666- 660- 478
nr oferty: POTR-MS-685
email: ewelina@poternieruchomosci.pl

Jeśli planujesz kupić lub sprzedać swoją nieruchomość chętnie Ci w tym pomogę. Zapraszam do bezpłatnej konsultacji, która pomoże Ci dobrać najlepszą strategię.
* Prezentowana oferta nie stanowi oferty handlowej w rozumieniu Art. 66 par. 1 Kodeksu Cywilnego, a dane w niej zawarte mają charakter jedynie informacyjny i mogą ulec zmianie. _________________________________________________________________________________
POTER Nieruchomości kompleksowo zajmuje się obsługą sprzedaży/kupna nieruchomości, współpracujemy z doradcą kredytowym, który wybierze dla Państwa najlepszą i korzystną opcję kredytu, posiadamy ubezpieczenie OC, gwarantujemy bezpieczeństwo transakcji. Dbając o bezpieczeństwo naszych klientów, a często także na ich wyraźne życzenie, nie podajemy adresów nieruchomości bez podpisania uprzednio umowy o pośrednictwo w kupnie lub najmie.

Nota prawna

Opis oferty zawarty na stronie internetowej sporządzany jest na podstawie oględzin nieruchomości oraz informacji uzyskanych od właściciela, może podlegać aktualizacji i nie stanowi oferty określonej w art. 66 i następnych K.C.

Szczegóły

Symbol oferty POTR-MS-685
Powierzchnia 115,00 m²
Powierzchnia użytkowa 90,00 m²
Powierzchnia balkonów/tarasów 13,28 m²
Liczba pokoi 3
Piętro 2
Rodzaj budynku nowe budownictwo
Opłaty w czynszu administracja, Części wspólne, monitoring, ogrzewanie, sprzątanie, woda, wywóz nieczystości, wywóz śmieci, zaliczka na fundusz remontowy
Liczba pięter w budynku 2
Garaż miejsce garażowe
Piwnica 1,65 m²
Stan lokalu do wprowadzenia
Stan prawny Odrębna własność lokalu
Mies. czynsz admin. 720 PLN
Instalacje nowe
Balkon taras
Liczba balkonów 1
Liczba tarasów 1
Rok budowy 2012
Plac zabaw tak
Widok park/skwer
Woda tak - własna
Dojazd ASFALTOWA
Otoczenie osiedle
Ogrzewanie C.O. lokalne
Tarasy taras duży
Usytuowanie dwustronne
Drzwi antywłamaniowe tak

Pomieszczenia

Typ kuchni aneks kuchenny połączony z jadalnią i salonem
Rodzaj kuchni aneks kuchenny - połączony z salonem

Podobne oferty

Mieszkanie na sprzedaż - Wrocław, Krzyki, Ołtaszyn, ok. ul. Marii Wittek
mieszkanie na sprzedaż - Wrocław, Krzyki, Ołtaszyn, ok. ul. Marii Wittek

POTR-MS-677

Wrocław, Krzyki, Ołtaszyn,…
mieszkanie na sprzedaż

3 pokoje 62,00 m²

999 000
16 112,90 zł/m2
nowa oferta
Dodaj
do notatnika
Mieszkanie na sprzedaż - Wrocław, Krzyki, Wojszyce, Grota Roweckiego
mieszkanie na sprzedaż - Wrocław, Krzyki, Wojszyce, Grota Roweckiego

POTR-MS-658

Wrocław, Krzyki, Wojszyce,…
mieszkanie na sprzedaż

3 pokoje 61,00 m²

920 000
15 081,97 zł/m2
oferta na wyłączność
Dodaj
do notatnika
PLN
PLN
PLN
PLN
PLN
PLN
PLN
%
PLN
PLN
PLN

PLN

Uwaga: mogą wystąpić dodatkowe opłaty za założenie księgi wieczystej oraz ustanowienie hipoteki.

Dane:

PLN
%

Wynik:

PLN
pierwsza rata
ostatnia rata

Napisz do nas

Proszę wypełnić to pole
Proszę wypełnić to pole
Proszę wypełnić to pole
Proszę wypełnić to pole
Trwa wysyłanie...

Ta strona wykorzystuje pliki cookies w celach statystycznych oraz w celu dostosowania naszych serwisów do indywidualnych potrzeb klientów. Zmiany ustawień dotyczących plików cookie można dokonać w dowolnej chwili modyfikując ustawienia przeglądarki. Korzystanie z tej strony bez zmian ustawień dotyczących cookies oznacza, że będą one zapisane w pamięci urządzenia.

rozumiem