Wrocław, Krzyki, Partynice, Jeździecka

Mieszkanie na sprzedaż

2 pokoje 4 piętro 46,00 m2 13 586,96 zł/m2

625 000 zł

nowa oferta
Ewelina

Pośrednik w obrocie nieruchomościami

Opis nieruchomości

Oferta tylko w POTER Nieruchomości.

Na sprzedaż bardzo ładne i komfortowe 2-pokojowe mieszkanie o powierzchni 45,63 m2 z dużym balkonem na 4 piętrze 5-piętrowego apartamentowca z windą z 2023 r. na Krzykach, na Partynicach przy ul. Jeździeckiej, na nowoczesnym osiedlu Tęczowy Raj, w okolicy Parku Klecińskiego i Toru Wyścigów Konnych

Dzięki swojej kameralnej atmosferze oraz dobrej infrastrukturze, osiedle jest idealnym miejscem do zamieszkania, szczególnie dla osób ceniących spokój, ale nie rezygnujących z bliskości miejskich udogodnień.
W pobliżu są parki, ścieżki rowerowe, sklepy oraz przystanki autobusowe i tramwajowe.



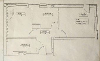
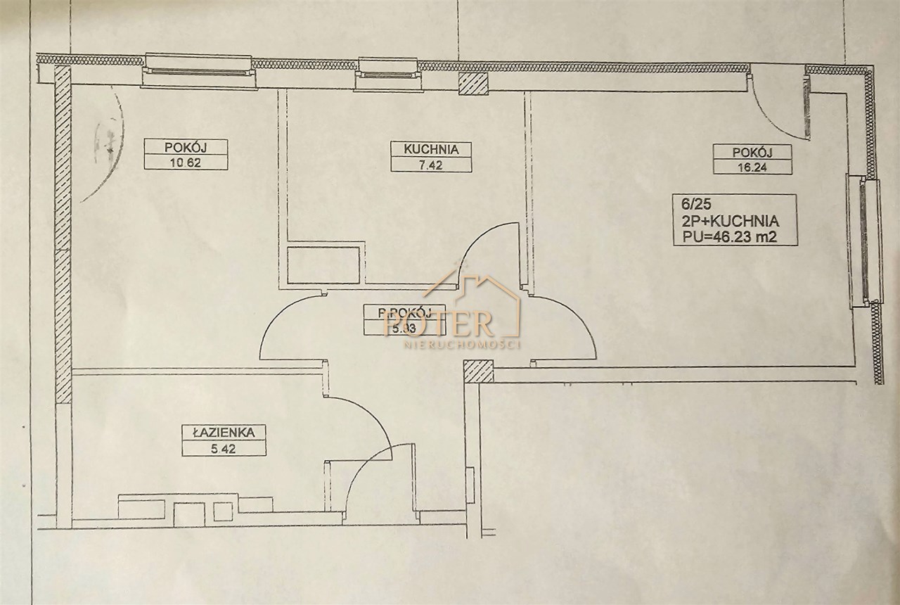
⭐️ Mieszkanie składa się z:

- salonu z wyjściem na słoneczny balkon (16,24 m2)

- sypialni z szafą (10,62 m2)

- oddzielnej kuchni z oknem (7,42 m2)

- przedpokoju z szafą (5,93 m2)

- łazienki z WC (5,42 m2)

- dużego balkonu (ok. 10 m2)


⭐️ Do mieszkania przynależy miejsce parkingowe w garażu podziemnym płatne dodatkowo 35 000 zł oraz komórka lokatorska (4,07 m2) - płatna dodatkowo 20 000 zł (zakup obligatoryjny).

⭐️ W budynku jest rowerownia/wózkownia

⭐️ Bezpieczne, nowoczesne i prestiżowe osiedle, z placem zabaw i dużą ilością zieleni

⭐️ Lokal ciepły, dwustronny z ekspozycją słoneczną na południową i wschodnią stronę

⭐️ Wysoki standard wykończenia

⭐️ Czynsz: ok.  600 zł (woda, ogrzewanie, fundusz remontowy, sprzątanie, administracja,  części wspólne,  śmieci)

⭐️ Światłowód

⭐️ Budynek przystosowany dla osób niepełnosprawnych

⭐️ Wideodomofon

⭐️
Mieszkanie w pełni umeblowane i wyposażone w sprzęt AGD, gotowe do wprowadzenia od zaraz!

⭐️ Idealne zarówno do zamieszkania, jak i jako inwestycja pod wynajem!

⭐️ Pełna własność z księgą wieczystą
 

Atuty lokalizacji:

  • świetnie skomunikowana okolica (tramwaj, autobus) – szybki dojazd do centrum
  • w pobliżu sklepy tj. Aldi, Biedronka, Rossmann, Auchan, CH Bielany, Żabka
  • dostęp do terenów rekreacyjno-sportowych, ścieżek rowerowych i spacerowych, stanowiących przyjazne otoczenie dla osiedla
  • w pobliżu Park Kleciński, Tor Wyścigów Konnych, Park Migdałowy, Park Południowy
  • Szkoła Podstawowa nr 42
  • Tramwaj: 7,17
    Autobus: 126, 133, D, 107, 247, 933



CENA: 625 000 zł  Do negocjacji 

Polecam, zapraszam do kontaktu.

Ewelina Otawa
Pośrednik w obrocie nieruchomościami lic. zaw. nr 22791
tel. 666- 660- 478
nr oferty: POTR-MS-670
email: ewelina@poternieruchomosci.pl

Jeśli planujesz kupić lub sprzedać swoją nieruchomość chętnie Ci w tym pomogę. Zapraszam do bezpłatnej konsultacji, która pomoże Ci dobrać najlepszą strategię.
* Prezentowana oferta nie stanowi oferty handlowej w rozumieniu Art. 66 par. 1 Kodeksu Cywilnego, a dane w niej zawarte mają charakter jedynie informacyjny i mogą ulec zmianie.
_________________________________________________________________________________
POTER Nieruchomości kompleksowo zajmuje się obsługą sprzedaży/kupna nieruchomości, współpracujemy z doradcą kredytowym, który wybierze dla Państwa najlepszą i korzystną opcję kredytu, posiadamy ubezpieczenie OC, gwarantujemy bezpieczeństwo transakcji.

Nota prawna

Opis oferty zawarty na stronie internetowej sporządzany jest na podstawie oględzin nieruchomości oraz informacji uzyskanych od właściciela, może podlegać aktualizacji i nie stanowi oferty określonej w art. 66 i następnych K.C.

Szczegóły

Symbol oferty POTR-MS-670
Powierzchnia 46,00 m²
Powierzchnia balkonów/tarasów 10,00 m²
Liczba pokoi 2
Piętro 4
Rodzaj budynku apartamentowiec
Opłaty w czynszu administracja, Części wspólne, fundusz remontowy, ogrzewanie, sprzątanie, Winda, woda, woda ciepła, wywóz nieczystości, zaliczka na fundusz remontowy
Liczba pięter w budynku 5
Garaż miejsce garażowe
Piwnica 4,07 m²
Stan lokalu wysoki standard
Stan prawny Odrębna własność lokalu
Mies. czynsz admin. 600 PLN
Okna PCV
Instalacje nowe
Balkon jest
Liczba balkonów 1
Liczba tarasów 1
Rok budowy 2023
Plac zabaw tak
Widok na podwórko
Dojazd asfalt
Otoczenie osiedle
Ogrzewanie C.O. lokalne
Winda tak
Liczba wind 1
Tarasy taras
Usytuowanie dwustronne
Drzwi antywłamaniowe tak
Przystosowania dla niepełnosprawnych tak

Pomieszczenia

Typ kuchni kuchnia jasna, osobno
Rodzaj kuchni oddzielna i widna

Podobne oferty

Mieszkanie na sprzedaż - Wrocław, Stare Miasto, Szczepin, Nabycińska
mieszkanie na sprzedaż - Wrocław, Stare Miasto, Szczepin, Nabycińska

POTR-MS-657

Wrocław, Stare Miasto,…
mieszkanie na sprzedaż

2 pokoje 32,00 m²

532 000
16 625,00 zł/m2
Dodaj
do notatnika
Mieszkanie na sprzedaż - Wrocław, Fabryczna, Popowice, Jelenia
mieszkanie na sprzedaż - Wrocław, Fabryczna, Popowice, Jelenia

POTR-MS-650

Wrocław, Fabryczna, Popowice,…
mieszkanie na sprzedaż

2 pokoje 33,00 m²

479 000
14 515,15 zł/m2
oferta na wyłączność
Dodaj
do notatnika
Mieszkanie na sprzedaż - Wrocław, Krzyki, Ołtaszyn, ul. Agrestowa
mieszkanie na sprzedaż - Wrocław, Krzyki, Ołtaszyn, ul. Agrestowa

POTR-MS-648

Wrocław, Krzyki, Ołtaszyn,…
mieszkanie na sprzedaż

3 pokoje 47,44 m²

675 000
14 228,50 zł/m2
oferta na wyłączność
Dodaj
do notatnika
Mieszkanie na sprzedaż - Wrocław, Stare Miasto, Marsz. Józefa Piłsudskiego
mieszkanie na sprzedaż - Wrocław, Stare Miasto, Marsz. Józefa Piłsudskiego

POTR-MS-646

Wrocław, Stare Miasto,…
mieszkanie na sprzedaż

3 pokoje 62,00 m²

639 000
10 306,45 zł/m2
Dodaj
do notatnika
PLN
PLN
PLN
PLN
PLN
PLN
PLN
%
PLN
PLN
PLN

PLN

Uwaga: mogą wystąpić dodatkowe opłaty za założenie księgi wieczystej oraz ustanowienie hipoteki.

Dane:

PLN
%

Wynik:

PLN
pierwsza rata
ostatnia rata

Napisz do nas

Proszę wypełnić to pole
Proszę wypełnić to pole
Proszę wypełnić to pole
Proszę wypełnić to pole
Trwa wysyłanie...

Ta strona wykorzystuje pliki cookies w celach statystycznych oraz w celu dostosowania naszych serwisów do indywidualnych potrzeb klientów. Zmiany ustawień dotyczących plików cookie można dokonać w dowolnej chwili modyfikując ustawienia przeglądarki. Korzystanie z tej strony bez zmian ustawień dotyczących cookies oznacza, że będą one zapisane w pamięci urządzenia.

rozumiem