Wrocław, Krzyki, Tarnogaj, Jesionowa

Mieszkanie na sprzedaż

3 pokoje 6 piętro 65,00 m2 14 861,54 zł/m2

966 000 zł

Ewelina

Pośrednik w obrocie nieruchomościami

Opis nieruchomości

Oferta na wyłączność.

Na sprzedaż bardzo ładne i komfortowe 3-pokojowe
mieszkanie o powierzchni 64,45 m2 z dużym balkonem na 6 piętrze 17-piętrowego apartamentowca z 2 windami z 2018 r. na Krzykach, na Tarnogaju przy ul. Jesionowej

- blisko przystanki tramwajowe i autobusowe, przedszkole, Szkoła Podstawowa nr 9, Park Tarnogajski
- ok. 2 km Galeria Wroclavia, dworzec PKP/PKS


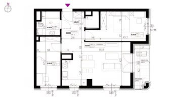
⭐️ Mieszkanie składa się z:

- salonu z wyjściem na balkon (24,35 m2)

- pokoju (14,05 m2)

- pokoju (10,78 m2)

- przedpokoju z szafą (8,71 m2)

- pomieszczenia gospodarczego  (1,8 m2)

- łazienki (4,73 m2)

- BALKONU  (5,44m2)

⭐️ Do mieszkania przynależy miejsce parkingowe w garażu podziemnym – płatne dodatkowo 50 000 zł (zakup nieobligatoryjny, posiada księgę wieczystą).

⭐️ W budynku jest wózkownia/rowerownia

⭐️ Budynek z recepcją, monitoringiem, ochroną 24/h, przystosowany dla osób niepełnosprawnych

⭐️ Bezpieczne, nowoczesne i prestiżowe osiedle położone blisko centrum miasta, z placem zabaw i dużą ilością zieleni

⭐️ Lokal ciepły, dwustronny, z ekspozycją słoneczną na południowo-wschodnią stronę, z widokiem na panoramę miasta

⭐️ Wysoki standard wykończenia

⭐️ Media miejskie. Czynsz: ok. 940 zł (przy 4 osobach)  + miejsce postojowe ok. 170 zł.
Dodatkowo płatny prąd wg. zużycia.

⭐️ Światłowód
 

Atuty lokalizacji:

  • świetnie skomunikowana okolica (tramwaj, autobus) – szybki dojazd do centrum
  • w pobliżu sklepy tj. Kaufland, Lidl, Biedronka, Auchan
  • żłobki, przedszkola, szkoła podstawowa, place zabaw dla dzieci 
  • w pobliżu Park Tarnogajski, Park Wschodni
  • obiekty sportowe: Aquapark, park trampolin JumpWorld, centrum wspinaczkowe Tarnogaj 
  • w kilka minut dojedziemy do dworca PKP i PKS czy Galerii Wroclavia, Uniwersytetu Ekonomicznego
  • w pobliżu osiedla znajdują się przystanki tramwajowe linii 8, 16, 31, 32 i autobusowe 110, 133, 124, 125, 134, 145, 245, 325 którymi szybko dostaniemy się w dowolną część miasta


CENA: 966 000 zł do negocjacji!

Polecam, zapraszam do kontaktu.

Ewelina Otawa
Pośrednik w obrocie nieruchomościami lic. zaw. nr 22791
tel. 666- 660- 478
nr oferty: POTR-MS-654
email: ewelina@poternieruchomosci.pl

Jeśli planujesz kupić lub sprzedać swoją nieruchomość chętnie Ci w tym pomogę. Zapraszam do bezpłatnej konsultacji, która pomoże Ci dobrać najlepszą strategię.
* Prezentowana oferta nie stanowi oferty handlowej w rozumieniu Art. 66 par. 1 Kodeksu Cywilnego, a dane w niej zawarte mają charakter jedynie informacyjny i mogą ulec zmianie.
_________________________________________________________________________________
POTER Nieruchomości kompleksowo zajmuje się obsługą sprzedaży/kupna nieruchomości, współpracujemy z doradcą kredytowym, który wybierze dla Państwa najlepszą i korzystną opcję kredytu, posiadamy ubezpieczenie OC, gwarantujemy bezpieczeństwo transakcji.

Nota prawna

Opis oferty zawarty na stronie internetowej sporządzany jest na podstawie oględzin nieruchomości oraz informacji uzyskanych od właściciela, może podlegać aktualizacji i nie stanowi oferty określonej w art. 66 i następnych K.C.

Szczegóły

Symbol oferty POTR-MS-654
Powierzchnia 65,00 m²
Powierzchnia balkonów/tarasów 6,00 m²
Liczba pokoi 3
Piętro 6
Rodzaj budynku apartamentowiec
Opłaty w czynszu ochrona, ogrzewanie, sprzątanie, Winda, monitoring, administracja, Części wspólne, fundusz remontowy, woda, woda ciepła, wywóz nieczystości, zaliczka na fundusz remontowy
Liczba pięter w budynku 17
Stan lokalu wysoki standard
Stan prawny Odrębna własność lokalu
Mies. czynsz admin. 950 PLN
Okna PCV
Instalacje nowe
Balkon duży
Liczba balkonów 1
Rok budowy 2018
Plac zabaw tak
Widok na podwórko
Woda ciepła - miejska
Dojazd asfalt
Otoczenie osiedle
Ogrzewanie C.O. miejskie
Winda tak
Liczba wind 2
Usytuowanie dwustronne
Przystosowania dla niepełnosprawnych tak

Pomieszczenia

Typ kuchni aneks kuchenny połączony z jadalnią i salonem
Rodzaj kuchni aneks kuchenny - połączony z salonem

Podobne oferty

Mieszkanie na sprzedaż - Wrocław, Krzyki, Ołtaszyn, ok. ul. Marii Wittek
mieszkanie na sprzedaż - Wrocław, Krzyki, Ołtaszyn, ok. ul. Marii Wittek

POTR-MS-677

Wrocław, Krzyki, Ołtaszyn,…
mieszkanie na sprzedaż

3 pokoje 62,00 m²

999 000
16 112,90 zł/m2
nowa oferta
Dodaj
do notatnika
Mieszkanie na sprzedaż - Wrocław, Krzyki, Wojszyce, Grota Roweckiego
mieszkanie na sprzedaż - Wrocław, Krzyki, Wojszyce, Grota Roweckiego

POTR-MS-658

Wrocław, Krzyki, Wojszyce,…
mieszkanie na sprzedaż

3 pokoje 61,00 m²

920 000
15 081,97 zł/m2
oferta na wyłączność
Dodaj
do notatnika
Mieszkanie na sprzedaż - Wrocław, Krzyki, Ołtaszyn, Ułańska
mieszkanie na sprzedaż - Wrocław, Krzyki, Ołtaszyn, Ułańska

POTR-MS-645

Wrocław, Krzyki, Ołtaszyn,…
mieszkanie na sprzedaż

3 pokoje 115,00 m²

1 090 000
9 478,26 zł/m2
oferta na wyłączność
Dodaj
do notatnika
Mieszkanie na sprzedaż - Wrocław, Krzyki, Tarnogaj, Nyska
mieszkanie na sprzedaż - Wrocław, Krzyki, Tarnogaj, Nyska

POTR-MS-644

Wrocław, Krzyki, Tarnogaj,…
mieszkanie na sprzedaż

2 pokoje 51,00 m²

760 000
14 901,96 zł/m2
oferta na wyłączność
Dodaj
do notatnika
PLN
PLN
PLN
PLN
PLN
PLN
PLN
%
PLN
PLN
PLN

PLN

Uwaga: mogą wystąpić dodatkowe opłaty za założenie księgi wieczystej oraz ustanowienie hipoteki.

Dane:

PLN
%

Wynik:

PLN
pierwsza rata
ostatnia rata

Napisz do nas

Proszę wypełnić to pole
Proszę wypełnić to pole
Proszę wypełnić to pole
Proszę wypełnić to pole
Trwa wysyłanie...

Ta strona wykorzystuje pliki cookies w celach statystycznych oraz w celu dostosowania naszych serwisów do indywidualnych potrzeb klientów. Zmiany ustawień dotyczących plików cookie można dokonać w dowolnej chwili modyfikując ustawienia przeglądarki. Korzystanie z tej strony bez zmian ustawień dotyczących cookies oznacza, że będą one zapisane w pamięci urządzenia.

rozumiem