











Opis nieruchomości
ENERGOOSZCZĘDNE ROZWIĄZANIA - FUNKCJONALNY ROZKŁAD POMIESZCZEŃ - NISKIE OPŁATYDo wynajęcia lokal o powierzchni 65,41 m2 z ogródkiem i garażem w budynku z 2011r. w cichej, spokojnej okolicy we wschodniej części Wrocławia na Wojnowie przy ul. Perkusyjnej
- w pobliżu stacja PKP Wojnów, sklep LIDL, Biedronka, Pizzeria, Las Strachociński
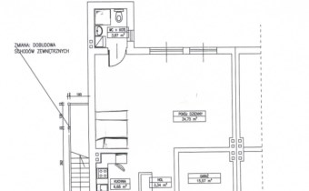
⭐️ Lokal składa się z:
- Garażu (15,57 m2)
- WC + kotłowni (3,87 m2)
- Aneksu kuchennego (6,68 m2)
- Pokoju dziennego z wyjściem na ogród (34,75 m2)
- Hollu z szafą + wiatrołap (4,54 m2)
Pow. działki: 306 m2
Pow. tarasu: ok. 12 m2
Pow. ogródka: ok. 80 m2
⭐️ Komunikacja i atuty lokalizacyjne
Dobra komunikacja z centrum miasta, 50m do przystanku (115, 118), 500m do stacji kolejowej PKP Wojnów Blisko Wschodnia Obwodnica Wrocławia.
W najbliższej okolicy żłobek, przedszkole, Szkoła podstawowa, Biedronka, Dino, Żabka, Lidl, N-park, DM, Pepco, Pizzeria i wiele innych usług.
✔️ garaż + 4 miejsca postojowe
✔️ niski czynsz ok. 300 zł (prąd, śmieci, woda)
✔️ nieruchomość częściowo umeblowana i wyposażona
✔️ ogrzewania fotowoltaika (7,665 kW) + pompa ciepła
✔️ Dwustronne, z ekspozycją słoneczną na północną i południową stronę
Oferta na wyłączność.
CENA: 3500 zł plus ok. 300 zł opłaty
Zapraszam do kontaktu.
Ewelina Otawa
Pośrednik w obrocie nieruchomościami lic. zaw. nr 22791
tel. 666- 660- 478
nr oferty: POTR-DS-445
email: ewelina@poternieruchomosci.pl
Jeśli planujesz kupić lub sprzedać swoją nieruchomość chętnie Ci w tym pomogę. Zapraszam do bezpłatnej konsultacji, która pomoże Ci dobrać najlepszą strategię.
*Prezentowana oferta nie stanowi oferty handlowej w rozumieniu Art. 66 par. 1 Kodeksu Cywilnego, a dane w niej zawarte mają charakter jedynie informacyjny i mogą ulec zmianie.
_________________________________________________________________________________
POTER Nieruchomości kompleksowo zajmuje się obsługą sprzedaży/kupna nieruchomości, współpracujemy z doradcą kredytowym, który wybierze dla Państwa najlepszą ofertę.